Skip to main content
Yasenka Real Estate
FOR SALE
$949,900

8 Dulcies Point Road
Kingston, NH 03848

Single Family
Residential
2
Beds
2
Baths
2,640
Sq. Ft.
0.3
Acre Lot
Courtesy: Vincent Forzese - Realty ONE Group NEST, Phone: 9782554394
Home> New Hampshire> Kingston> 03848
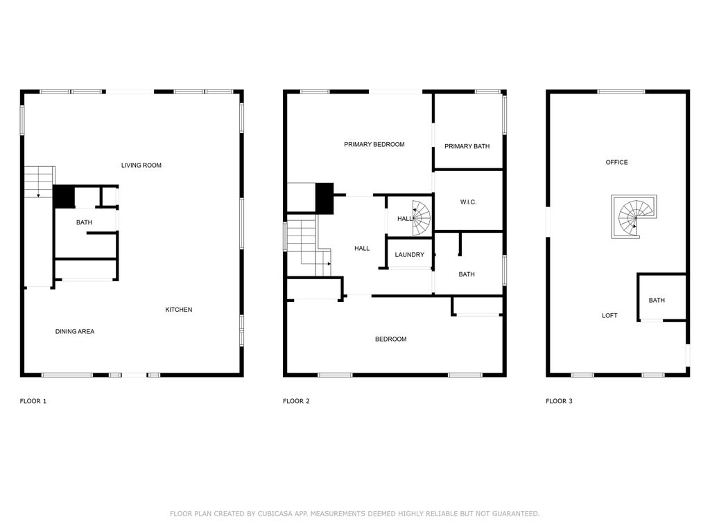
Live every day like you're on vacation at this stunning three-level waterfront home on Powwow Pond. Enjoy spectacular views from nearly every room, with direct water access right from your backyard. The open-concept first floor features a spacious kitchen, dining area, and living room with deck access - perfect for entertaining or simply relaxing by the water - plus a full bath for added convenience. The second floor offers two generous bedrooms, including a primary suite with ensuite bath, a second full bath, and a dedicated laundry area. A spiral staircase leads to the top-floor bonus room - ideal for a home office, game room, or guest suite - with its own half bath. Additional features include a 1-car garage, plenty of off-street parking, large storage shed, and an unfinished walk-out basement with high ceilings offering great expansion potential. Don't miss this rare opportunity to own a waterfront retreat that blends year-round living with everyday serenity.
5053446
Single Family, Colonial, 3+ Story
2
NH-Rockingham
2 Full/1 Three-Qtr/1 Half
2013
0.3 Acres
Private Water
3
True https://photos.prod.cirrussystem.net/1059/c5b35740bc349d681490108662181b4f/68414486.jpeg 5053446
Loading...
Data Source: Constellation Data Labs®
The scores below measure the walkability of the address, access to public transit of the area and the convenience of using a bike on a scale of 1-100

Walk Score

Transit Score

Bike Score

Loading...
Data Provided by ATTOM Data®
Courtesy: Vincent Forzese - Realty ONE Group NEST, Phone: 9782554394
Copyright 2025 PrimeMLS, Inc. All rights reserved. This information is deemed reliable, but not guaranteed. The data relating to real estate displayed on this Site comes in part from the IDX Program of PrimeMLS. The information being provided is for consumers’ personal, non-commercial use and may not be used for any purpose other than to identify prospective properties consumers may be interested in purchasing. Data last updated 11/8/2025 6:42 PM
This content last refreshed on 11/8/2025 6:34 PM CST. Some properties which appear for sale on this web site may subsequently have sold or may no longer be available.
Information is deemed reliable but is not guaranteed.