Skip to main content
Yasenka Real Estate
FOR SALE
$550,000

4 Cypress Lane Unit 10
Windham, NH 03087

Townhouse
Residential
2
Beds
2
Baths
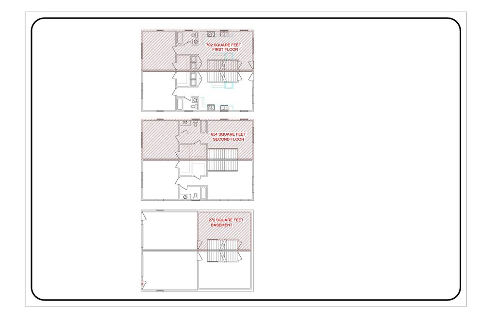
2,004
Sq. Ft.
N/A
Acre Lot
Courtesy: Alie Broom - Compass New England, LLC, Phone: 603-512-1408, Phone: 6039652265
Home> New Hampshire> Windham> 03087
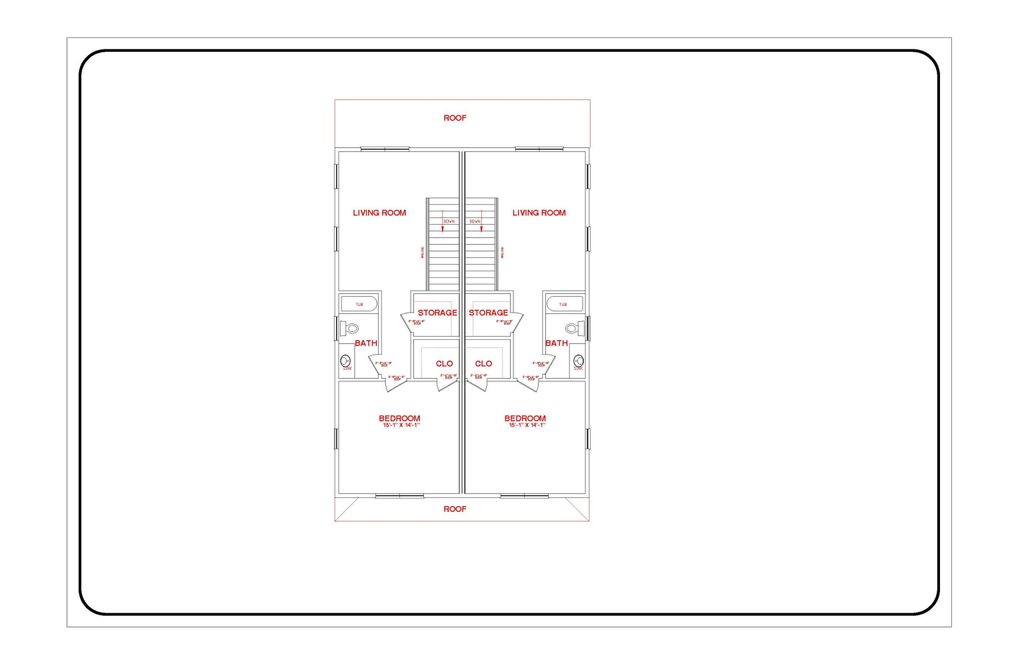
Welcome to Phase 2 at Del Ray Place. This 55+ duplex unit townhouse features luxurious finishes! Discover your dream home in this beautifully finished duplex unit in building 3. This is where quality meets convenience! This exceptional 2-bedroom, 2-bathroom unit offers an inviting and versatile living space perfect for those seeking comfort and style. This community is designed for residents aged 55 and older, making it an ideal choice for those looking to invest in a vibrant and inclusive neighborhood. With one of the bedrooms conveniently located on the first floor, this unit offers easy accessibility and privacy for guests or family members. Don't miss out on this rare opportunity to own a gorgeous condo in a sought-after community. Schedule a showing today and experience the perfect blend of luxury and convenience! GPS Del Ray Drive. Road is across from it. Drive all the way to the top. Agent is related to seller. To be completed spring 2026. Photos are for design finishing purposes only. Actual layout of the home will differ from photos.
5055471
Townhouse, 3+ Story, Townhouse
2
NH-Rockingham
2 Full
2025
Private Water
3
Vinyl Siding
Septic Tank, Shared Septic
True https://photos.prod.cirrussystem.net/1059/17131d27baa65f15d144da2c1e14f8a9/3354253190.jpeg 5055471
Loading...
Data Source: Constellation Data Labs®
The scores below measure the walkability of the address, access to public transit of the area and the convenience of using a bike on a scale of 1-100

Walk Score

Transit Score

Bike Score

Loading...
Data Provided by ATTOM Data®
Courtesy: Alie Broom - Compass New England, LLC, Phone: 603-512-1408, Phone: 6039652265
Copyright 2026 PrimeMLS, Inc. All rights reserved. This information is deemed reliable, but not guaranteed. The data relating to real estate displayed on this Site comes in part from the IDX Program of PrimeMLS. The information being provided is for consumers’ personal, non-commercial use and may not be used for any purpose other than to identify prospective properties consumers may be interested in purchasing. Data last updated 2/18/2026 12:36 PM
This content last refreshed on 2/18/2026 12:29 PM CST. Some properties which appear for sale on this web site may subsequently have sold or may no longer be available.
Information is deemed reliable but is not guaranteed.